Výběr routeru a AP do panelového bytu 3+1

Routery, modemy, Wifi AP, switche, kabely, konektory…

Moderátoři: Mods_senior, Mods_junior, HW spec team

Zamčeno
Janos42
nováček
Příspěvky: 3
Registrován: 22 srp 2023 08:49

Výběr routeru a AP do panelového bytu 3+1

Příspěvek od Janos42 »

Ahoj všichni,
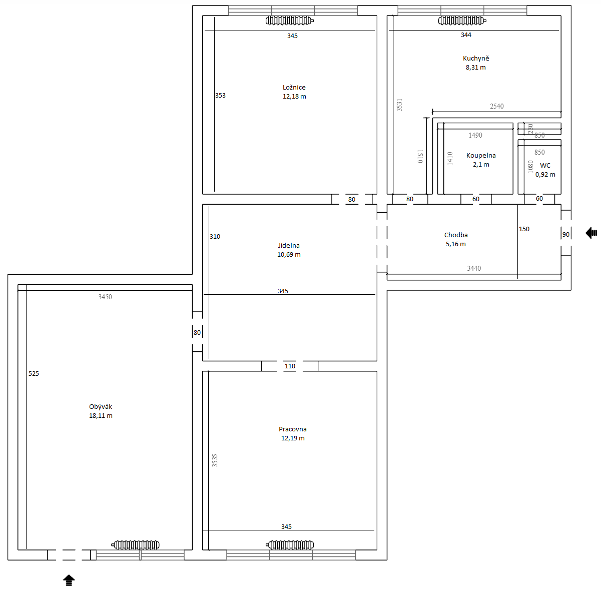
potřebuji poradit s návrhem sítě (především výběrem vhodného routeru a AP) do panelového bytu 3+1, půdorys v příloze. Čeká nás nová elektroinstalace, takže je možnost natahat kabely do většiny místností. Síťovou zásuvku plánuji ve všech obytných místnostech.

Topologii sítě bych si představoval nějak takhle:
síťová topologie.png
Rack bych chtěl mít umístěný ve vstupní chodbě ve skříni.

1. Typ a výrobce routeru, který tam máš teď?
žádný, v bytě nebyl internet
2. Typ připojení
Optika od Pody 1000 / 300 Mbps ukončená jejich Huawei zařízením v režimu bridge
3. Požaduješ WiFi?
AP bych rád nějaké s WiFi 6, umístění bych si představoval ve středové místnosti (v půdorysu jídelna). Zde nejsem schopný odhadnout, zda jedno AP pokryje také kuchyň a balkon a zda nebude lepší použít dvě?
4. Kolik zařízení bude k routeru připojeno? Případné rozšíření (NAS, kamery, TV, PS, atd.)
kabel: 1x NAS, 1x TV, 3x PC; WiFi: 5x mobil, 2x laptop, nějaké chytré osvětlení, odhadem max 20 zařízení na WiFi
5. Funkce routeru
zde jsem nenáročný, jde mi primárně o to, aby to spolehlivě šlapalo, ale například logování by bylo fajn
6. Požaduješ DLNA, USB port atd?
není nutné
7. Rychlost internetu dle smlouvy?
1000 / 300 Mbps

Shrnutí:
Mikrotik je pro mne zbytečně složitý na nastavování a rád bych se mu vyhnul, ale pokud bude výrazně lepší v poměru cena/výkon, tak jsem schopný se s ním sžít. Ubiquiti mi přijde fajn a mám s ním zkušenosti, ale jejich routery mi přijdou zbytečně předražené na podobnou síť, ale zvažuji využití jejich AP. Dává UniFi AP smysl i bez jejich routeru/controlleru? Líbil se mi Ubiquiti UniFi Dream Router, ale pak jsem zjistil, že na gigabit je nejspíš příliš pomalý. Bude stačit jedno AP umístěné v středové místnosti nebo je lepší zvažovat 2?

Snažil jsem se svoji situaci podat co nejpřehledněji, ale rád zodpovím doplňující otázky, pokud bude potřeba.
(Cena je při výběru důležitá, ale není omezující a za kvalitní síť si klidně připlatím.)
Děkuji za případné návrhy.
Přílohy
půdorys jednoduchý.png
Uziv00

Re: Výběr routeru a AP do panelového bytu 3+1

Příspěvek od Uziv00 »

Ahoj,
nepíšeš cenu, takže mé doporučení je: https://www.czc.cz/asus-tuf-ax6000/363398/produkt
Případně něco srovnatelného. Má 2,5Gbit WAN port, takže tu gigabitovou rychlost v pohodě zvládne. Pokud ho umístíš někde uprostřed jídelny nahoře, neměl by být ani problém se signálem - samozřejmě záleží na okolním rušení, to si netroufám odhadnout.
Můžeš se rozhodnout pro cokoli jiného se srovnatelnými parametry.
Naposledy upravil(a) Uziv00 dne 22 srp 2023 12:01, celkem upraveno 1 x.
Janos42
nováček
Příspěvky: 3
Registrován: 22 srp 2023 08:49

Re: Výběr routeru a AP do panelového bytu 3+1

Příspěvek od Janos42 »

Díky za rychlou odpověď a tip na router. Vidím to tak, že to prvně zkusím jen s routrem a kdyžtak přidám někam AP pro zlepšení signálu.

Mám ještě hloupý dotaz k vedení kabelů, jelikož mi to není úplně jasné. Od Huawei bridge od ISP musím dovést kabel do WAN portu routeru a od něj z jednoho jeho LAN portu dalším kabelem zpět do switche, který budu mít na chodbě? Tudíž dvěma kabely nebo lze kabel od ISP vést rovnou do switche a ten k routeru připojit pouze jedním kabelem do WAN?

(proč to řeším: patch panel a switch chci mít na chodbě schovaný ve vestavné skříni)
Melvidor
Level 1.5
Level 1.5
Příspěvky: 110
Registrován: 04 úno 2017 15:50

Re: Výběr routeru a AP do panelového bytu 3+1

Příspěvek od Melvidor »

Jak píšeš v první části. ISP -> WAN router -> LAN switch
Janos42
nováček
Příspěvky: 3
Registrován: 22 srp 2023 08:49

Re: Výběr routeru a AP do panelového bytu 3+1

Příspěvek od Janos42 »

Ok, díky za potvrzení.
Zamčeno
  • Podobná témata
    Odpovědi
    Zobrazení
    Poslední příspěvek
  • Wifi Router do bytu
    od desperado007 » » v Sítě - hardware
    21 Odpovědi
    23540 Zobrazení
    Poslední příspěvek od petr22
  • Rekonstrukce bytu - nová domácí síť
    od cervcek » » v Sítě - hardware
    1 Odpovědi
    6434 Zobrazení
    Poslední příspěvek od atari
  • Výměna routeru, posílení signálu
    od Kimkong » » v Sítě - hardware
    13 Odpovědi
    40997 Zobrazení
    Poslední příspěvek od šulda
  • Výběr SSD
    od HelFix » » v Rady s výběrem hw a sestavením PC
    7 Odpovědi
    9031 Zobrazení
    Poslední příspěvek od HelFix
  • Výběr PC podle her
    od buripe » » v Rady s výběrem hw a sestavením PC
    6 Odpovědi
    5891 Zobrazení
    Poslední příspěvek od buripe

Zpět na „Sítě - hardware“